133 Sunstone way
Twenty20 & Co Inc

Jun 23, 2025
"Every little thing matters. The devil is in the details."
what you need to make an informed decision
stuff you'll need for your insurance policy

elements
![]() |
Jun 23, 2025 |
![]() |
133 Sunstone way Rocky View, Alberta |
![]() |
NEW / Detached |
![]() |
Sunny 16° |
![]() |
Client / GJ |
![]() |
Lucas Kirsch |
![]() |
Gregory Johnson Not applicable j_greg@me.com 4036803547 |
![]() |
Not applicable |
![]() |
9:07AM Start Time |
method
From the disciplined approach of gathering information & curating, to the mixture of photos & clear narratives. The Method was founded on pure construction experience.
Designed to CONNECT you with the information to help make an informed decision & built to do one thing really well:
Drive the point home.
"Component. Issue. Action. That’s the flow. Tell the story, share the knowledge & inspire action"
thank you
Thanks for choosing us for your home inspection. We appreciate your confidence in us & it was my pleasure to serve you today.
I will be your primary contact & I will do anything I can to make sure you are fully clear on my findings today.
Please feel free to contact us if you have any questions of if you need further information. We will gladly answer any questions.
Kind Regards,
Lucas Kirsch
stuff.
A home inspection is kind of like an annual check-up at the doctor. It’s used to make sure things are working properly & it can be useful in spotting things that might eventually become a problem Some people actually think we come equipped with a crystal ball, a flux capacitor or even X-Ray vision! Unfortunately, we can’t go into the past, go “Back to the Future” or, like Superman, see through walls.
Disclaimers are boring so I won’t get into that but please understand we can only visually inspect what we see today. Every house is different just like every customer has different expectations of what a home inspection should be. However, we know some people like to read the report in its entirety. We’ve provided you with a full copy of our Standards of Practice & Disclaimers. HIT THE LOGO.
If you are reading this then obviously the details matter to you. You’d make a great home inspector.
legends
![]() |
It’s a snap! Here are some key terms you’ll see throughout. |
Iconography | We often use icons or example images when it provides a more effective representation. |
![]() |
Immediate Attention There's some real urgency on the fix. Action advised. |
![]() |
Attention Heads up! This may need to be addressed soon |
Not Inspected | Limits out of our control & or outside of our SOP's |
Hand Gestures | Universal / Non-verbal communication in a photo that packs a punch. |
Issue: | Identify the problem if there is one |
Action: | Recommended path to address the issue |
L: | Location where it is found |
T: | Typical Tradesperson |
R: | Reason why it wasn't inspected |
$ / $$ / $$$ | Merely a rough guide of overall cost. |
summary

Action: Further Evaluate / Repair
Notes: Immediate Attention – Issue(s) critical; corrective action required. See Doc Box on the “72 Seconds” page for additional images, videos and documents related to your inspection report.

Action: Seal / Repair / Monitor
Notes: Attention – Issue(s) should be addressed in a timely manner.

Action: Correct / Adjust / Verify L: See Photo
Notes: Attention – Issue(s) should be addressed in a timely manner. Lower roof over garage.

Action: Seal / Repair / Monitor L: Garage Roof
Notes: Attention – Issue(s) should be addressed in a timely manner.

Action: Correct / Adjust / Verify L: See photo
summary

Action: Repair &/or Replace
Notes: Attention – Issue(s) should be addressed in a timely manner.

Action: Improve / Secure / Repair
Notes: Observation – Issue(s) should be monitored; plan for correction.

Action: Seal / Repair / Monitor
Notes: Attention – Issue(s) should be addressed in a timely manner.

Action: Seal / Repair / Monitor
Notes: Observation – Issue(s) should be monitored; plan for correction.

Action: Repair &/or Replace L: Back Yard
Notes: Attention – Issue(s) should be addressed in a timely manner.

Action: Improve / Secure
Notes: Attention – Issue(s) should be addressed in a timely manner.
summary

Action: Improve / Secure
Notes: Unsafe Condition – Hazard(s) present; address without delay.

Action: Improve / Secure
Notes: Service Advised – Issue(s) may impact performance.

Action: Repair &/or Replace
Notes: Attention – Issue(s) should be addressed in a timely manner.

Action: Seal / Repair / Monitor
Notes: Attention – Issue(s) should be addressed in a timely manner.

Action: Repair &/or Replace
Notes: Observation – Issue(s) should be monitored; plan for correction.
summary

Action: Further Evaluate L: See Photo
Notes: Observation – Issue(s) should be monitored; plan for correction. If wood is in concrete, it must be pressure-treated or have a seal plate.

Action: Further Evaluation Needed T: Builder
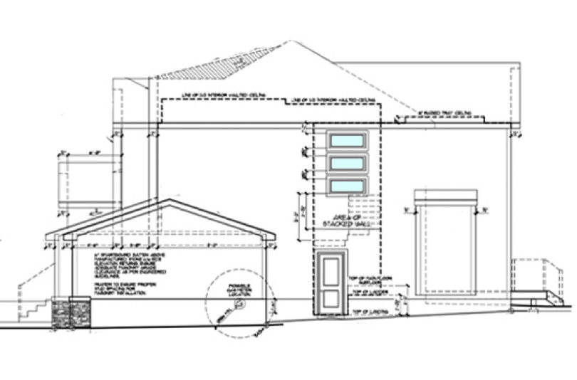
Notes: I spoke with Thomas at concise engineering. It’s nothing that either one of us have seen before with the discrepancy in width of beam.

Action: Further evaluation
Notes: Observation – CORRECTED Issue(s) should be monitored for settlement.

Action: Correct / Adjust / Verify
Notes: Attention – Issue(s) should be addressed in a timely manner.
R BACK TO SUMMARY |
|
READ ME
Every photo is FOCUSED & intentional. Solid orange = IMMEDIATE ATTENTION. Hollow orange = ATTENTION.
|
|
|
The Roof Surface
Visually examined for common defects. I’m guessing that this is from the trade taken care of the exterior cladding? Their ladders?
|
|
|
Roof Observations
Examined for continuity of material & coverage. These damage shingles will need to be replaced.
|
|
|
Inside Gutter
Regular cleaning of trough should be part of your yearly maintenance schedule. Standing water noted.
Soffit
Keep clean & free of debris like vegetation. A very important facet of the home!
|
|
|
|
|
|
Roof Front View
|
|
For Reference ONLY
For information, permits, and blueprints located on the 72 second page towards the end of this report.
|
|
General Information
For your knowledge.
|
|
|
The Roof Disclaimer
This roof section is based on what we could safely see at the time of inspection—whether from the ground, a ladder, or drone, depending on access and conditions. It’s a visual review only, and we follow InterNACHI and ASHI standards, which don’t require walking the roof or predicting how long it will last. Flashings, underlayments, and hidden areas aren’t fully visible. Weather, slope, materials, and roof age all affect what we can observe. For full limitations and scope, please check the disclaimer page found in the intro section of this report.
|
D BACK TO SUMMARY |
|
READ ME
Every photo is FOCUSED & intentional. Solid orange = IMMEDIATE ATTENTION. Hollow orange = ATTENTION.
|
|
|
|
|
Roof Utility Penetrations
|
|
|
Inside Gutter
|
|
Overall Roof
Just giving a point in time snap shot of the "over-all" roof.
|
|
|
Overall Roof 2
Giving a general concept of one section of the roof. We’re not there to catch every single splash guard, just make sure that the roofer has them all installed in the right places where water may overflow the gutter.
|
|
|
The Drone Disclaimer
This roof section was inspected using a drone to capture visual images from above. As per InterNACHI and ASHI standards, this is a visual-only review, based on what could be safely seen at the time. We do not lift shingles, walk on the roof, or predict remaining lifespan. Drone photos help give a broad overview, but they may not reveal hidden issues like flashing defects or early membrane failures. For full limitations and inspection scope, refer to the disclaimer page located in the intro section of this report.
|
|
Additional drone shots
We always prefer to see Metal in the valley. There is a bit of a choke point. Please consider heat trace Cable where the roof widen to where it narrows to prevent ice jamming. DAM’n. Some could call this architectural defect, you see it all the time, let’s just take preventative measures now.
|
|
|
Additional shots
Minor damage, not sure if this is just bruising and or blisters or from when the roof is installed. It’s typical to see some construction debris, and/or footprints, etc. Let’s have a roofer get up there and double check given with the holes that we saw on the lower roof over the garage.
|
|
|
Additional shots
Railing was being installed when we were on site double check how they fastened and anchored it through the duradeck. Either the patio door should be locked or there should be some kind of construction safety railing place.
|
|
|
Additional shots
I ran this one by Diaz and sons and Mike Ford at foothills roofing about whether or not it should have to go flashing. Both of them said yes. Also, please remember to extend the one downspout over top double garage past the post not before.
|
|
Gram-Shot
**Bonus Aerial Views** We’ve included a few additional drone shots to provide a broader perspective of the property and its surroundings. These images offer a unique vantage point, showcasing the home’s placement within the neighborhood, nearby features, and the overall landscape. While not part of the formal inspection, we thought it might be helpful to give you a better sense of the area from above. It’s just a little extra context to support your decision-making and help you visualize the property’s full potential.
|
|
|
Gram-Shot
Just another view!
|
E BACK TO SUMMARY |
|
READ ME
Every photo is FOCUSED & intentional. Solid orange = IMMEDIATE ATTENTION. Hollow orange = ATTENTION.
|
|
|
Entry Door(s)
Keeping a good seal is essential to maintaining your home's energy efficiency. Inspected for common defects.
Back Entry
|
|
|
Focal Window(s)
ALL Exterior Cladding
Here is the primary protective layer between your home & the external elements.
|
|
|
Exterior Outlet(s)
Tested for functionality.
Exterior Faucet(s)
Ensure to properly winterize in the colder months. Turned on & OFF.
|
|
|
Parging
This is a seasonal item and more more than likely get done very soon
|
|
|
Front / Back Foundation
The structural base upon which a building rests, providing stability & support for the entire structure.
Side(s) of Foundation
For your records. Watch Dog/ tar (foundation waterproofing)
|
|
|
Downspout(s)
They're not called "upspouts" for a reason. Keep them down & pointed away from the foundation :).
|
|
|
|
|
|
|
|
Photos + Words = Better Report
Our goal is to identify and document issues thoroughly. While we work to capture clear evidence, not every individual deficiency will have its own photo. Often, a single image can reflect multiple instances or similar conditions found throughout. Every photo supports a bigger, complete picture.
|
|
|
Name of Component
Component → Definition → Issue → Action — that’s the format when something’s wrong. But we also use photos to capture the home itself,
*Supporting Photography
Supporting photos help CLARIFY — a different view, a tighter shot, a better story. We take pride in how we present.
|
|
|
Gas Meter
Used to measure the volume of gases used at residential, commercial & industrial buildings.
Open And Close Gas Meter
It’s just good to know how to operate this in the case of an emergency. This is where they shut it down if you miss a bill.
|
|
|
Electrical Meter
Electrical Entry
Is where the utility's power connects to a property's internal electrical system. Underground.
|
|
|
Exhaust & Intake
A venting system that escapes steam vapour, carbon dioxide & intakes fresh air.
The Vents
Dirty intake/exhaust vents could impede their ability to function.
|
|
|
This page
One space. Captured clearly — so you know what’s there and its exact condition this day.
Deck Ledger Board
This horizontal piece of lumber is used to tie in construction elements such as porch roofs & decks.
|
|
|
Deck Flashing
The barrier to prevent moisture from entering the house in the openings at the ledger board connection. End damming?
Decking Material Up Close
For Your Records
|
|
Over-all Deck
|
|
|
|
|
|
|
|
|
|
|
|
|
|
|
|
|
Support Photo
For your records.
|
|
|
Support Photo
Further evaluate for cosmetic defects upon completion. Observable scuffs and cosmetic markings.
|
|
|
Support Photo
Sump discharge was causing moisture to pool against the side of the home / foundation.
|
|
|
Support Photo
Unsecure weatherproof penetration covers. Improve / Secure.
|
|
|
Support Photo
Taken from a different perspective.
|
|
|
Support Photo
Taken from a different perspective.
|
|
|
Support Photo
Taken from a different perspective.
|
|
|
Support Photo
|
|
|
|
|
|
|
|
|
|
|
Balcony Railing
Railing was installed on-site during inspection. Ensure penetrations have been properly sealed and monitor.
|
|
Support Photo
Sealant could be seen at the fasteners of the railing bracket.
|
|
For reference only
Attached documents on the page called 72 seconds. Close to the end of this report.
|
|
|
Side street scape
|
|
|
Side street scape
|
|
|
Side street scape
|
G BACK TO SUMMARY |
|
READ ME
Every photo is FOCUSED & intentional. Solid orange = IMMEDIATE ATTENTION. Hollow orange = ATTENTION.
|
|
|
Garage Motor • Control
Don't forget to ask the seller to leave behind the remote(s). The average lifespan of a motor is 10-12 years.
Garage Safety Sensors
These little guys project an invisible light beam to ensure safety. Keep them aligned.
|
|
Interior View of the Door
Otherwise known as the “The Heavy Lifter”. Your garage door is the largest moving part in your home & is used multiple times daily. It’s very important that you take the time to perform regular maintenance. Check cables, spring coils, lubricate moving parts, replace the weather gasket, replace the rollers, tighten up the hardware & ensure the pressure sensor has been adjusted for safety. No time for a check-up? Call a garage door professional to schedule a tune-up.
|
|
|
|
|
Garage Spring
|
|
|
The Garage Disclaimer
This garage section reflects a visual inspection based on what could be safely accessed at the time, following InterNACHI and ASHI standards. We look at the structure, walls, ceilings, floor, doors, safety sensors, and accessible outlets. Obstructions like vehicles or storage may limit our view. We don’t test every outlet or open up finished areas. Overhead door operation is checked under normal use. For full limitations and scope, see the disclaimer page located in the intro section of this report.
|
|
|
Name of Component
Component → Definition → Issue → Action — that’s the format when something’s wrong. But we also use photos to capture the home itself,
*Supporting Photography
Supporting photos help CLARIFY — a different view, a tighter shot, a better story. We take pride in how we present.
|
|
|
2nd Garage Door
|
|
|
Garage Door Track
Ensures the smooth travel of the garage door. Keep clean & free of debris.
Garage Door Track & Supports
|
|
|
Handrail
Visually examined for common defects and support
|
|
|
|
|
Garage Attic
This is not an ideal place to store things, especially if they’re heavy. Screwed Shut. Improve Access. Not Accessible: Area or item could not be accessed at the time of inspection and was therefore not evaluated.. Not Inspected
|
|
|
Support Photo
The left stringer was not making contact with the garage floor. Also see video in attached documents. 72 seconds Page.
|
|
|
Support Photo
Gaps betwen garage foundation and walls observed near garage doors. Ensure proper completion.
|
|
|
A BACK TO SUMMARY |
|
READ ME
Every photo is FOCUSED & intentional. Solid orange = IMMEDIATE ATTENTION. Hollow orange = ATTENTION.
|
|
|
The Hatch Entry
Consider using ridged foam board insulation & match the door insulation to that of the attic space.
|
|
|
|
|
Attic Structure
Inspected for quality of install & structural deficiencies.
|
|
Insulation Depth
There's no getting around it: If your house is in cold weather, keeping it warm in winter is expensive. Having the correct amount of attic insulation can help you maintain a comfortable temperature throughout your home & help save $$$ on your energy bills. *Plus, it could help prevent major issues like ice dams or even attic rain. QUICK FACTS: Attic insulation is the easiest & most cost-effective upgrade to a home. A properly insulated attic can save you an estimated 10-50% on your heating bill.
|
|
|
The Attic Disclaimer
This attic section is based on a visual inspection of accessible areas only, in line with InterNACHI and ASHI standards. We assess insulation, ventilation, structure, and signs of moisture or damage. Tight spaces, low clearance, or stored items may limit access and visibility. We do not disturb insulation or move stored contents. Some areas may not be safely reachable. Conditions can also change seasonally. For full limitations and scope, refer to the disclaimer page found in the intro section of this report.
|
|
|
Known Component
Search the component and give us a few words to describe whats going on.
*Supporting Photography
Supporting photos help CLARIFY — a different view, a tighter shot, a better story. We take pride in how we present.
|
|
|
Attic Utility
This removes air by ventilation through the pipe & out the roof.
Attic Utility
Inspected for continuous ventilation from the component to the outside.
|
|
|
|
|
|
|
Support Photo
Daylight was seen entering attic from exterior sheathing gaps. If daylight can enter, so can moisture and pests.
|
T BACK TO SUMMARY |
|
READ ME
Every photo is FOCUSED & intentional. Solid orange = IMMEDIATE ATTENTION. Hollow orange = ATTENTION.
|
|
|
Thermal Ceiling
We look up, down & all around. Doors, windows, or any penetration in the skeleton of your home is where we usually find the largest tem
Thermal Wall
Scanned for irregularities & consistency.
|
|
|
Thermal Window
Scanned for seal depletion & the presence of moisture.
Thermal Door
Scanned for insulation irregularities, air leaks & consistency.
|
|
|
Thermal Heat Supply
Thermal was used to inspect for temperature & to demonstrate air flow.
Thermal P-Trap
Scanned for leaks & demonstrating that it's holding water in the trap.
|
|
Thermal Hatch
For your records.
|
|
|
Inspections Explained
A home inspector is like a house detective, methodically walking through the home, inside & out, to assess key systems such as the roof, structure, plumbing, electrical, heating, & cooling. We don’t guess or make assumptions, we look for visible signs, use specialized tools when appropriate, & take photos to document what’s functioning properly, what’s showing signs of wear, & what may need further attention. It’s important to understand that this is a visual inspection. We won’t be opening up walls, dismantling components, or moving furniture or personal items. We inspect what’s accessible & visible. Our job is to provide you with a clear snapshot of its current condition, & help you understand what’s typical aging versus what might require repairs or further evaluation.
|
|
|
Name of Component
Component → Definition → Issue → Action — that’s the format when something’s wrong. But we also use photos to capture the home itself,
*Supporting Photography
Supporting photos help CLARIFY — a different view, a tighter shot, a better story. We take pride in how we present.
|
|
|
Hot Water Thermal
We always thoroughly run ALL plumbing fixtures & check for temperature variance.
Cold Water Thermal
See photo
|
|
|
Thermal Washer
Scanned for proof of operation & the presence of moisture.
Thermal Dryer
Scanned for proof of operation & temperature. We're also looking for leaks.
|
|
|
Thermal Dishwasher
A representative # of potential leak points were thermally examined today.
Thermal Fridge & Freezer
Scanned for proof of operation & the presence of moisture.
|
|
|
Thermal Stove
Scanned for proof of operation.
Thermal Oven
Scanned for proof of operation.
|
|
|
Additional Thermal Scan
Scanned for anomalies.
Additional Thermal Scan
Scanned for anomalies.
|
|
|
Additional Thermal Scan
Scanned for anomalies.
Additional Thermal Scan
Scanned for anomalies.
|
|
|
Additional Thermal Scan
Scanned for anomalies.
Additional Thermal Scan
Scanned for anomalies.
|
|
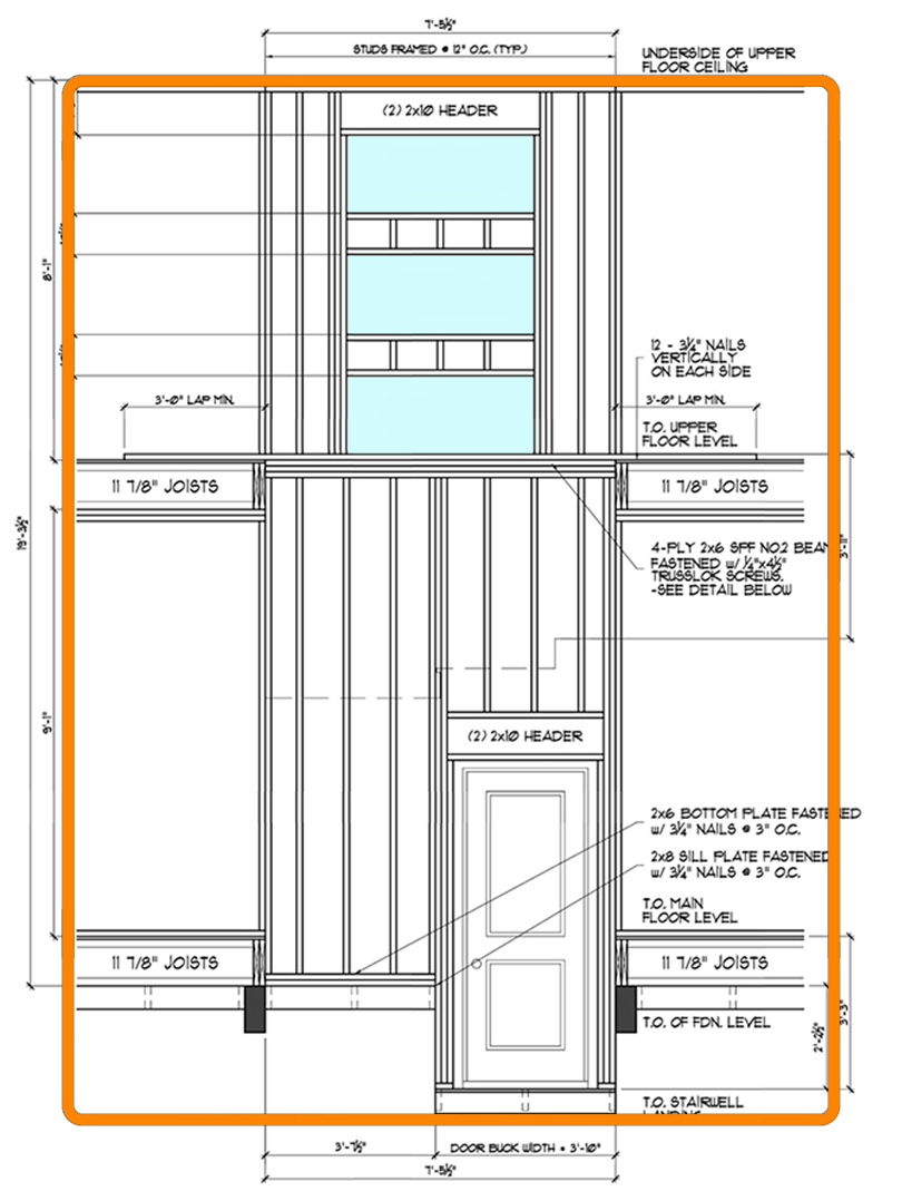
Stairwell
See drawing below
|
|
|
Only for reference
|
|
|
Additional Thermal Scan
Scanned for anomalies.
Additional Thermal Scan
Scanned for anomalies.
|
|
|
Additional Thermal Scan
Scanned for anomalies.
Additional Thermal Scan
Scanned for anomalies.
|
|
The Thermal Disclaimer*
Thermal imaging and moisture meters are used as tools to help identify temperature differences or elevated moisture in select areas. These tools do not see behind walls or guarantee hidden issues will be found. We scan accessible, high-risk areas, but this is not a full infrared or leak detection survey. Readings depend on surface conditions at the time. For more on the limits of thermal and moisture tools, see the disclaimer page in the intro section of this report.
|
I BACK TO SUMMARY |
|
READ ME
Every photo is FOCUSED & intentional. Solid orange = IMMEDIATE ATTENTION. Hollow orange = ATTENTION.
|
|
|
Switches
A select number of outlets (outlet tester) & switches were tested for function.
Interior Lights
We disco these ON & OFF more than a few times to try to catch a problem.
|
|
|
Outlets
Tested for faults.
Electrical Outlets
|
|
|
Interior Window
Opening your blindOpening your blinds can expose the surface of windows to circulating air which will help keep the condensation away!!
Open Window
A representative # of doors & windows were checked for operation & blown seals.
|
|
|
This page
One space. Captured clearly — so you know what’s there and its exact condition this day.
Smoke Detector
Inspected by pressing & holding the "test" button.
|
|
|
Carbon Monoxide Tester
Used to detect colorless, Odourless, & tasteless flammable gas.
Moisture Meter
Used to measure the percentage of water in a given product. Spot checks were performed.
|
|
The Interior Disclaimer
This interior section covers what was visually observed at the time of inspection, following InterNACHI and ASHI standards. We check walls, ceilings, floors, doors, windows, and stairs for visible damage or safety concerns. We don’t move furniture, lift flooring, or open finished walls. Some areas may be obstructed by belongings. Minor cosmetic issues may not be noted. For a full explanation of what is and isn’t included, see the disclaimer page in the intro section of this report
|
|
LEVEL Check Flooring
Also visually examined for common defects.
|
|
|
LEVEL Check Flooring
Floors, including staircases, were checked for level finish.
|
|
|
|
|
|
Flooring
|
|
Snap Shot 1
Ceiling and walls, for your records.
|
|
|
Snap Shot 2
Flooring, for your records
|
|
|
The Ceiling, Walls & Floors
We do our best to review the interior during the inspection, focusing on what is visible and accessible at the time. Normal wear and tear, minor nicks, and typical cosmetic blemishes should be expected and are not the focus of the report. We take general photos to help document the home’s condition for your reference — capturing flooring types, wall textures, and ceiling finishes such as flat, stipple, popcorn, or feature walls. These images serve as a helpful snapshot of your home’s current condition and features, allowing you to better remember and reference what was present at the time of inspection.
|
|
|
Name of Component
Component → Definition → Issue → Action — that’s the format when something’s wrong. But we also use photos to capture the home itself,
*Supporting Photography
Supporting photos help CLARIFY — a different view, a tighter shot, a better story. We take pride in how we present.
|
|
|
Fire Suppression System
Sprinkles & sprays water when a predetermined temperature is exceeded. Outside of SOPs: Item falls outside the Standards of Practice and is not included in the scope of this inspection.. Not Inspected
Support Photo
Fire suppression and sprinklers should be evaluated and maintained by certified technicians.
|
|
|
Support Photo
Drywall repairs performed on-site during inspection.
|
|
|
Support Photo
Location of scratched/damaged glass surface.
|
K BACK TO SUMMARY |
|
READ ME
Every photo is FOCUSED & intentional. Solid orange = IMMEDIATE ATTENTION. Hollow orange = ATTENTION.
|
|
|
GFCI
Ground Fault Circuit Interrupter. Inspected for presence & function.
Plug Tester.
Used to confirm if an outlet or plug is wired correctly.
|
|
|
The Fridge
ALL Appliances were tested for operation & should be rechecked for condition & function on the day of possession.
Dishwasher
Empty your plate first! Turned ON & OFF after a quick cycle.
|
|
|
x2 Stovetop
Checked for operation. Turned ON & OFF
The Oven
Checked for operation. Turned ON & OFF
|
|
Hood Fan
A range hood removes fumes, smoke, heat, etc from above the stove when cooking. Tested with toilet paper for suction.
|
|
|
The kitchen sink
All taps and faucets were run for a reasonable amount of time. Drains p-traps and temperature variance. All checked.
|
|
|
Better Reports
Every photo we take has a purpose.
Some show defects that need fixing.
Others show components that are in good shape, working as intended.
And some? They just help tell the story—from a different angle, a wider view, or a close-up that captures the details. Together, they give you a baseline.
A visual reference you can return to months or even years later.
When someone asks, “Was that like that before?”—you’ll have the answer. This isn’t about overkill. It’s about protection.
Because when it comes to your home, clarity always costs less than guessing.
|
|
|
Name of Component
Component → Definition → Issue → Action — that’s the format when something’s wrong. But we also use photos to capture the home itself,
*Supporting Photography
Supporting photos help CLARIFY — a different view, a tighter shot, a better story. We take pride in how we present.
|
|
|
Kitchen Drain Basket
The removable part that plugs the drain. The strainer catches large chunks to prevent clogs. The basket flange goes on the inside of th
P-Trap
All p-traps were felt for leaks, snugness, and thermal scanned
|
|
|
Kitchen Cabinets
A representative number of built-ins and cabinetry was tested under normal operating procedures. Tuneup needed.
Kitchen Drawer
A representative number of drawers were tested for functionality.
|
|
|
Caulk • Sealant
Over the years, this will deteriorate expand and contract. This would be considered typical and normal. General upkeep.
|
L BACK TO SUMMARY |
|
READ ME
Every photo is FOCUSED & intentional. Solid orange = IMMEDIATE ATTENTION. Hollow orange = ATTENTION.
|
|
|
Laundry Washer
Run for a quick cycle & turned OFF. Sometimes we leave the lid ajar to ventilate.
Inside The Washer
Even though it’s constantly washing, this will need a thorough clean every now & then.
|
|
|
Laundry Dryer
Run for a quick cycle.
Inside The Dryer
This will also need a cleaning every once in a while. Remember to clean the lint filter regularly.
|
|
|
Keep it DRY!
Door & drawer OPEN to let moisture escape & prevent organic growth.
Hot / Cold & Drain
Regularly check your washer’s hot, cold, and drain lines, leaks can cause major water damage before you even know there’s a problem.***
|
|
ATTENTION! Lint & Exhaust
Clean your lint trap and check the dryer exhaust, it's a simple step that prevents fires, boosts efficiency, and extends your dryer's life.
|
|
|
The Laundry Disclaimer
This laundry section is based on a visual inspection of accessible components, following InterNACHI and ASHI standards. We check plumbing, venting, outlets, and the general condition of appliances if present and connected. Machines are tested under normal use when possible, but we don’t test every cycle or setting. Some areas may be blocked by appliances or storage. For full inspection limitations, refer to the disclaimer page in the intro section of this report.
|
|
|
Dryer Exhaust
Rigid metal duct is preffered over flexible. Check connections regularly & have cleaned every year or so.
Support Photo
|
|
|
Washer Water Lines & Drain
We like to see hammer arrestors with HE appliances. Ensure the drain hose remains secure. Monitor for leaks.
Washer Water Supply
The distribution pipe that feeds the laundry appliance(s)
|
|
Water Hammer Arrestor
Used to absorb the shock when water flows in a piping system.
|
B BACK TO SUMMARY |
|
READ ME
Every photo is FOCUSED & intentional. Solid orange = IMMEDIATE ATTENTION. Hollow orange = ATTENTION.
|
|
|
The Bathroom GFCI
This device shuts off an electric power circuit when it detects a current flowing along an unintended path.
Toilet Paper Test
Bathroom fans should run 30 minutes after every use. Timed switches make this easy not to forget.
|
|
|
Shower Head
Silicone & seal all valves below the shower head. This will need upkeep over the years.
The Drains
For your records.
|
|
|
Tub Filler
For your records.
Bathtub
Visually examined for common defects.
|
|
|
Bathroom Faucet(s)
Faucets, tub fillers & shower heads were fully tested & run for a significant amount of time.
Bathroom P-Trap
Built to keep the gases from entering back into your home. Examined for leaks & lightly touched for snugness.
|
|
|
Toilet Tank
Toilet
Tested flushability, inspected for leaks & stability but not used...
|
|
The Bathroom Disclaimer
This bathroom section reflects a visual inspection of accessible fixtures and finishes, in line with InterNACHI and ASHI standards. We check sinks, tubs, showers, toilets, fans, and outlets for basic function and visible issues. Fixtures are tested under normal use. Leaks, moisture, or slow drainage may not be visible at the time. We don’t remove panels or inspect behind finished surfaces. For full scope and limitations, see the disclaimer page in the intro section of this report.
|
|
|
Support Photo
|
|
|
Support Photo
The shared upstairs bathroom fixture was installed too close to the ceiling, bulbs are not able to be replaced.
|
|
|
M BACK TO SUMMARY |
|
READ ME
Every photo is FOCUSED & intentional. Solid orange = IMMEDIATE ATTENTION. Hollow orange = ATTENTION.
|
|
|
FYI Panel Clearance
requires a clear area for access & work that is (30”) wide, (36”) deep, & (78”) high. Depending on where you live.
Electrical Safety⚡️
Main & sub panel boxes should always be secured & worked on by certified tradespeople.
|
|
|
Inside Electrical Panel
PLEASE, never remove the panel cover to access the breaker. Leave this to the pros.
The Main Breaker
Generally, this will shut down everything! Designed to interrupt a large amperage load.
|
|
|
Water Meter
Water Main Valve
Controls the water flow to the entire building. You'll need easy access in an emergency.
|
|
|
Exterior Water Shutoff Valve
These should be turned off & bled in the winter months to prevent potential problems in the spring.
The Water Lines
|
|
|
The Sewer Line
We’re usually very limited on what we can see here besides showing you the material.
Main Drain
|
|
|
The Hot Water Unit
Life expectancy of a water heater is about 8-12 years from new.
Hot Water Data Plate
|
|
|
Main Heating Unit
Run for the majority of this inspection. A thorough clean & precision tune-up is always recommended.
Heating Unit Data Plate
|
|
Heating Unit Flame
A healthy flame should be a clear, steady blue, indicating proper combustion & efficient operation.
|
|
|
The Mechanical Disclaimer
This mechanical section includes a visual inspection of accessible heating, cooling, water heating, and ventilation systems, following InterNACHI and ASHI standards. Units are tested under normal operating conditions when power and fuel are available. We don’t open sealed components or predict future performance. Age, service history, and installation details may limit what we can observe. For a full list of limitations, refer to the disclaimer page in the intro section of this report.
|
|
|
This page
One space. Captured clearly — so you know what’s there and its exact condition this day.
Furnace 2
Noted.
|
|
|
Data Plate
Filter
Every 3 months is key. Ise the cheap ones.
|
|
2nd Furnace Flame
|
|
|
This page
One space. Captured clearly — so you know what’s there and its exact condition this day.
TPR
Temperature-Pressure Relief Valve. Designed to auto-release water if pressure or temp in the water tank exceeds safe levels.
|
|
|
Hot Water Unit Thermostat
Expansion Tank
Used to protect excessive pressure.
|
|
Support Photo
|
|
|
Name of Component
Component → Definition → Issue → Action — that’s the format when something’s wrong. But we also use photos to capture the home itself,
*Supporting Photography
Supporting photos help CLARIFY — a different view, a tighter shot, a better story. We take pride in how we present.
|
|
|
Humidifier 1
These connect to a heating system to deliver moist air throughout the house.
Filter
|
|
|
Emergency Shutoff
The location of this switch should be known to everyone.
Heating Unit Shutoff Cover.
A cover plate is recommended. Why? Because it will prevent people from turning these off by accident.
|
|
|
Thermostat
Set high to test the heating system, then returned to original settings.
Thermostat after use.
|
|
|
Lateral Support
This aids in ensuring the joist cannot move sideways & cannot rotate from the vertical.
Support Photo
|
|
|
Point Load
This is where a load is transferred vertically to the foundation, horizontal beam, or bearing wall.
Support Photo
By stairs. Would prefer to see the entire landing, resting on a post just like opposite side.
|
|
|
Pump Jacks
Support Photo
I can only assume that these cracks were not here before using the pump jacks. You’ll have to monitor this overtime for settlement
|
|
|
Support Photo
I’m not sure if this is because of the pump jack or if they’re coming back to fix and shim please have Builder advise
|
|
|
Rim Joist
Rim Joist
A rim joist is a horizontal board that connects the ends of the floor joists and provides support to the exterior walls of a home.
|
|
|
Frost Wall
Frost Wall
A type of foundation wall that helps prevent freezing and thawing of the ground beneath a house.
|
|
|
Vap Bar
Vapour Barrier
Prevents moisture migration, controlling humidity and protecting against potential damage, mold, or energy loss.
|
|
|
Visible Joist(s)
These serve to provide stiffness to the subfloor sheathing & spread the load. Missing fillers, not preferred construction practice.
|
|
|
|
|
For Reference ONLY
|
|
|
Rise & Run • Stairs
The vertical distance from the top of one tread to the top of the next tread.
|
|
|
Stringer
Visually examined for common defects. No major deflection noted.
Stringer
This is the vertical support board or structural member that runs along each side or center of the staircase.
|
|
Under Stairs
For your records.
|
|
Stairs
See below for rough idea where the footer is. For further details, you can go to the 72 second page at the end of this report. All blueprint, schematics and permits should be in there.
|
|
|
For reference only
|
|
For reference only
|
|
|
Framing 101
Behind every wall is a framework — much like your own skeleton. Vertical studs form the bones, while cripples support around openings. King and jack studs work together to hold up headers over doors and windows, spreading the load. Top plates cap the walls and tie everything together, while bottom plates anchor it all to the floor. This unseen structure is critical to the strength, stability, and alignment of your home. Just like a healthy body depends on solid bones, your home depends on this framing to stand true.
|
|
|
This page
One space. Captured clearly — so you know what’s there and its exact condition this day.
What’s beneath us?
Radon is a hidden gas that may affect your families health. We always advise testing or better yet mitigation.
|
|
|
Basement Slab
I can imagine that this was hoarded before poor. Cracks noted. Keep your eye on them.
Radon Rough-In
This consists of a porous layer & a barrier beneath the slab & radon piping that extends from below the slab.
|
|
Radon Canada.
Radon is a naturally occurring radioactive gas produced by the decay of uranium in soil and rock. It is colorless, odorless, and tasteless, making it difficult to detect without specific testing. In Canada, radon can accumulate in homes, particularly in basements and ground floors, through cracks in foundations or gaps around pipes. Exposure to high levels of radon is a major health risk, significantly increasing the likelihood of lung cancer, making it the second leading cause after smoking. Regular testing and mitigation are recommended to ensure safety. Conduit for main waterline open and exposed, which could lead to radon intrusion be aware. Like we spoke about this morning, let’s just get it done for the kids and their health and safety.
|
|
Concrete Slab
Concrete is known for being gray and cracking. This is no different than any New Builds that we go into on the daily. Nice to see the builder seal and patch. Keep your eye on it for heaving in the future.
|
|
|
Only for reference
|
|
*The HRV x2
Heat Recovery Ventilators exchanges indoor and outdoor air, using heat from outgoing air to warm incoming fresh air, optimizing energy use and improving indoor air quality.
|
|
|
HRV Data Plate
This usually contains model & serial #. It also contains the birth date & other important info.
|
|
|
Heat Recovery Ventilation
|
|
|
HRV Filter
Keeping your HRV (heat recovery ventilator) clean would be a good thing to keep high on the priority list. Examined for functionality & cleanliness.
|
|
|
|
|
Sump Pump.
These prevent basement flooding by removing accumulated water, directing it away from the home's foundation. Maintenance tips include regular testing by pouring water into the sump pit, cleaning the grate, and checking the power source and backup system. Ensure the discharge line is clear and directs water away from the property to prevent recirculation. Install a battery backup to keep the pump operational during power outages and consider a water alarm for early flood detection.
|
|
Backflow Preventer
This allows water to flow in one direction & aids it preventing it from coming back. Not tested. Outside of SOPs: also noticed a couple clean cover plates missing. Have Builder install.. Not Inspected
|
|
|
Back Flow Preventor.
Prevents sewage backup into a home during heavy rains or blockages. It automatically closes when water flows backward, sealing the sewer line. This protects the property from costly damage and ensures wastewater flows away from the home as intended. Regular maintenance is essential to keep it functioning correctly.
|
insurance
Overview | |
Build Year | 2025 also refer to permit / DP / BP |
Outdoor Temperature | Approx +16°C / 60° F / Also see weather network |
Direction Home Faces | Undetermined / Also see listing details |
# Stories / Vacancy | Basement +2 Floors / Vacant / Trades on site |
Roof & Attic | |
Limitations → | Visibility / Height / Safety |
Roof Material | Asphalt Architecual Shingle / Damage noted |
Age / Condition | Brand New / Good Condition |
Roof flashing(s) | Limited visibility / Missing kick out over garage |
Roof Vent / Stack | Present / Present (as seen with drone) |
Gutter / Spout Matl. | Metal - keep clear of debris & obstructions |
Soffit / Fascia Matl | Soffit: Metal / Facia: Composite (or like) |
Sheathing /Condition | OSB (oriented strand board) / minor damage |
Attic Approx R-Value | R-40+ 10” to 16” (Unevenly distributed) |
Type of Insulation | Cellulose or like / Loose Fill |
Attic Util./ Baffles | Inspected For Connections/ Present (Ltd. Vis.) |
Exterior & Garage | |
Limitations → | Visibility / Access / Height |
Flat Work / Grading | Seasonal incomplete / no driveway |
Window / Condition | See photos / brand new condition |
Flashings | Present @ Windows / Doors |
Exterior Cladding | Concrete-Composite Board (or Like) Hardie |
ELEC Meter / Entry | Location: Sideyard / Entry: Underground |
Gas Main Location | Exterior Side Yard / See Photo |
Cooling Type / Year | Not applicable / roughin? |
Garage Motor Brand | X2 See Photo / TESTED for operation |
Garage HVAC Type | Not applicable |
insurance
Health & Safety | |
Limitations → | Visibility / Access / fire sprinkler, not tested |
Safety Features Present | SD/CO Combo / replace at expiration. |
Moisture, Gas & CO | Meters used in suspect areas when applicable. |
Moisture / Microbial | No visible signs or too limited to confirm. |
ALL Stairs-Railings | Visibly inspected for common defficiencies |
Garage Man-Door | Self closing / Tested |
Egress Windows | Inspected for presence / Refer to code book |
Interior & Laundry | |
Limitations → | Visibility / Access / Obstructions |
Thermostat Location | Multiple Locations - Reset to default |
Wall / Ceiling Matl. | Drywall / (Flat) Scanned for common issues |
Door / Windows | A representative number tested under normal use. |
Window Treatments | Not applicable (consider accordion blinds) |
Cabinetry / Built-in | A representative number tested under normal use. |
Baseboard / Casing | Visually inspected for common defects |
Flooring Materials | Hardwood and Tile / UNPROTECTED / stains, debris |
Fireplace Fuel Type(s) | Natural Gas - restored to original settings |
Washer & Dryer | Tested for function & temperature variance |
Kitchen & Bathroom | |
Limitations → | Visibility / Access / Stored Items |
Appliance /Condition | Tested under normal use (NOT all settings) / GOOD |
Fridge Waterline | No access / further evaluation |
Tap / Drain / P-Trap | Rep. # tested under normal operation |
Kitchen / Bath GFCIs | Present / TESTED and restored to default |
Tub/ Sink Over-flows | “Splash” tested to mimic typical usage. MONITOR |
Tub/ Shower Surround | Inspected for common defects / Overflow tested |
Bathroom Fan(s) | Present / Tested for suction / SEE THERMAL |
insurance
Mechanical | |
Limitations → | Visibility / Access / Obstructions |
Main Elect Panel | Location: mechanical room |
Main Amp Breaker | 200 AMP / SEE Photo |
Surge Protector | Undetermined / Request disclosure |
Wiring Material | Copper / SEE PHOTO |
AFCI Breakers | Present / Not tested |
Ground / Bonding | Undetermined - Further Evaluate |
Emergency Shut-Off | Location: Switch present (before unit) |
YEAR / Heating Type | See Photo / x2 Gas Furn, Monitor for condensation. |
Additional HVAC | Heat recovery ventilation (HRV) x2 |
H₂O Supply / Main | Public / Location: Mechanical Room |
YEAR/ Hot Water Unit | NG Tank / SEE DATA PLATE PHOTO |
Visible waterline | Matl: PEX (or like) EXT. shut-off present |
Visible Sewer Matl. | ABS / Recommend Sewer Scope Inspection |
M•Drain/ Check Valve | Present (Do Not Block!) / Underermined |
Sump Pmp/ Sewer Lift | Present (TESTED) / NA (Keep 2nd pump ON hand) |
Manuals & Paper Work | Please request from sellers or management |
Structure & Therm | |
Limitations → | 90% Covered / currently repairing settling stairs? |
Thermal Scanned | All visible appliances, walls, ceilings & floors. |
Structure Type | Engineered (TJI / LVL / Truss) & Dimensional |
Roof Structure | Truss / As seen from hatch |
Interior Walls | 2x4 Studs / 99% Not Visible |
Exterior Walls | 2x6 exterior studs / 99% Not Visible |
Foundation Type | Poured Concrete / Limited view / Visible Cracks |
Slab Material | Concrete / 95% Not Visible / Noted Cracks |
agreement
Twenty20 & Co.
2017 27 Ave SW
Calgary, Alberta
4038365528
www.2020mhi.com
Business License #
Inspection Date
Jun 23, 2025 at 9:07am MDT
Inspection Address
133 Sunstone way
Rocky View, Alberta
This Agreement is Between
Gregory Johnson as ("Client") and Twenty20 & Co. as ("Company")
1. Preamble
Subject to the terms and conditions of this service contract (the "Service Contract"), dated as of the date signed by the Client on the signature page, the Client wishes to engage Company and the Inspector, agree to perform the inspection at the address provided above (the "Dwelling") on the date and time noted above ("Inspection Date") in consideration of the payments, covenants and agreements set out herein:
2. Purpose / Scope
The purpose of the Inspection is to take reasonable efforts to endeavor to detect the presence of home defects in the Dwelling by performing a visual, non-invasive inspection of the readily accessible components of the Dwelling and provide a same-day written report (or within 1 business day) containing high-level findings and identification of the defects observed and deemed material by Inspector (the "Report"). The scope of the Inspection is limited to a visible, non-invasive inspection of the readily accessible components of the Dwelling existing and apparent on the date and time of the Inspection, utilizing, where applicable and appropriate, the InterNACHI Standards of Practice as a guideline unless otherwise noted or not possible. The Inspection excludes latent defects that cannot be reasonably detected by Inspector in connection in a one-day inspection aimed at producing a same-day report. The Inspection is not a building code, title, or by-law compliance inspection. As a courtesy only, the Inspector may note conditions that contribute to possible home issues or offer other commentary, but such comments are not part of the Inspection.
4. Client Responsibilities / Exclusivity
It is the responsibility of the Client to obtain from the Dwelling owner a disclosure of any known defects on or before the Inspection Date. The Report is intended for the exclusive use and benefit of the Client. The Client agrees to give the Inspector permission to discuss observations with real estate agents or other interested parties. INSPECTOR AND COMPANY (AND THEIR SUPPLIERS) ACCEPT NO RESPONSIBILITY FOR USE BY THIRD PARTIES AND IF THE REPORT IS PROVIDED TO ANOTHER THIRD PARTY BY YOU OR ANY PERSON ACTING ON YOUR BEHALF, YOU RELEASE INSPECTOR AND COMPANY (AND THEIR SUPPLIERS) FROM ANY LIABILITY AND AGREE TO PAY ANY ASSOCIATED COSTS.
agreement
7. Assignment / Litigation
This Agreement is not transferable or assignable by the Client. The parties agree that any litigation arising out of this Agreement shall be filed in Alberta. If Inspector and/or Company is the substantially prevailing party in any such litigation, the Client shall pay all costs, expenses, and legal fees of Inspector and Company in defending said claims.
8. Excluded / Included
The Inspection will NOT address environmental concerns including, but not limited to: air quality, water quality/quantity, sealed/underground fuel storage tanks, asbestos, radon gas, molds, toxins, lead paint, or soil contamination. The inspection report will also NOT address infestation by wood boring insects, rodents or other vermin. The Client understands and acknowledges that it may be necessary to call on specialists in these areas to identify and evaluate these risks. The Inspection contract does not include an inspection of any outbuildings or other structures not attached to the dwelling other than a garage or carport. The Inspection will include an inspection of the following components of the dwelling unless access is limited, weather or other conditions do not permit it: roofing; flashings or chimney; exterior including lot gradings, walkways, driveways, retaining walls, patios and decks; structure; electrical; heating and cooling systems (inspection of which shall be limited to external visual condition only); insulation; plumbing; interior.
10. Release / Disclaimer of Warranty
TO THE MAXIMUM EXTENT PERMITTED BY APPLICABLE LAW, THE CLIENT HEREBY RELEASES AND WAIVES ANY CLAIM IT MAY HAVE AGAINST THE INSPECTOR AND COMPANY (AND THEIR SUPPLIERS) FOR DEFECTS, ISSUES AND OTHER THINGS THAT MAY NOT REASONABLY BE DETERMINED DURING THE REGULAR COURSE OF A VISUAL INSPECTION OF READILY ACCESSIBLE COMPONENTS OF A DWELLING. THE CLIENT EXPRESSLY ACKNOWLEDGES AND AGREES THAT THE INSPECTION AND REPORT ARE NOT MEANT TO REFLECT OR CONSTITUTE A COMPREHENSIVE HOME INSPECTION (WHICH WOULD REQUIRE AN INSPECTION OF THE DWELLING BEYOND A VISUAL INSPECTION OF READILY ACCESSIBLE COMPONENTS). ACCORDINGLY, THE CLIENT EXPRESSLY ACKNOWLEDGES AND AGREES THAT THE SERVICES AND REPORTS ARE PROVIDED ON AN "AS IS" BASIS WITHOUT ANY REPRESENTATION, WARRANTY OR CONDITION OF ANY KIND, EITHER EXPRESS OR IMPLIED, INCLUDING, BUT NOT LIMITED TO THE IMPLIED REPRESENTATIONS, WARRANTIES OR CONDITIONS OF ACCURACY, AVAILABILITY, MERCHANTABILITY OR FITNESS FOR A PARTICULAR PURPOSE. NEITHER THE INSPECTOR OR COMPANY (OR THEIR SUPPLIERS) REPRESENT NOR WARRANT THAT THE INSPECTION OR REPORT WILL MEET THE CLIENT'S REQUIREMENTS OR THAT THEY WILL BE ERROR-FREE. THE INSPECTION AND THE REPORT ARE IN NO WAY A GUARANTEE, WARRANTY OR INSURANCE POLICY, EXPRESS OR IMPLIED, REGARDING THE FUTURE USE, OPERABILITY, HABITABILITY, SUITABILITY OF THE DWELLING OR THAT HIDDEN DEFECTS DO OR DO NOT EXIST.
11. Limitation of Liability
TO THE MAXIMUM EXTENT PERMITTED BY APPLICABLE LAW: (I) IN NO EVENT SHALL COMPANY AND INSPECTOR (OR THEIR SUPPLIERS) BE RESPONSIBLE OR LIABLE FOR ANY CONSEQUENTIAL, EXEMPLARY, SPECIAL OR INCIDENTAL DAMAGES OR FOR THE LOSS OF THE USE OF THE DWELLING WHATSOEVER; AND (II) DAMAGES OR LIABILITY ARISING OUT OF OR IN CONNECTION WITH THIS AGREEMENT SHALL BE LIMITED TO DIRECT AND PROVABLE DAMAGES AND SHALL IN NO EVENT EXCEED THE AMOUNTS PAYABLE UNDER THIS AGREEMENT BY THE CLIENT.
agreement
12. Entire Agreement
This Agreement represents the entire agreement between the parties. No statement or promise made by Company or its respective officers, agents, contractors or employees shall be binding.
13. Payment / Report Delivery
Payment of the fee set out in the receipt is due upon completion of the Inspection. The Client agrees to pay all legal and time expenses incurred in collecting due payments, including attorney’s fees, if any. Unless otherwise agreed to, the Report will be delivered to the Client within the same day or within 1 business day of the Inspection Date (if the Inspection is completed).
15. Severance and Enforceability
If any provision of this agreement is invalid under any applicable statute or is declared invalid by a court of competent jurisdiction, then it shall be deemed to be severed from this agreement provided, however, that the remainder of this agreement shall continue in full force and effect.
16. Authorization
If there is more than one Client, you are signing on behalf of all of them, and you represent that you are authorized to do so. If the Client is a corporation or similar entity, you personally guarantee payment of the fee.
17. Software Disclaimer
Client acknowledges that the Inspector and/or Company may use software and applications provided by third parties, in connection with performing the Inspection. CLIENT HEREBY ACKNOWLEDGES AND AGREES THAT ANY SUCH THIRD PARTY, IS NOT A PARTY TO THIS AGREEMENT AND (II) IN NO EVENT SHALL ANY SUCH THIRD PARTY BE LIABLE OR RESPONSIBLE FOR ANY LOSSES, LIABILITY, CLAIMS, COSTS AND EXPENSES ARISING OUT OF OR IN CONNECTION WITH THE INSPECTION OR THE USE OF SUCH THIRD PARTY'S SOFTWARE OR APPLICATIONS BY THE INSPECTOR.
Lucas Kirsch
Lic#:Twenty20 & Co.
Gregory Johnson
Client